ΠΩΛΕΙΤΑΙ οροφοδιαμέρισμα στον 5ο όροφο με εμβαδόν 105 τ.μ. σε υπό ανέγερση πολυτελούς 7όροφης οικοδομής ενεργειακής κλάσης Α+ στον Κορυδαλλό.
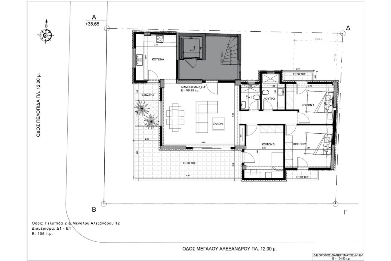
Οδός: Πελοπίδα 2 & Μεγάλου Αλεξάνδρου 12
Περιοχή: Κορυδαλλός
Έτος Κατασκευής: 2024
Παράδοση: 12/2026
Τιμή: Ρωτήστε μας
Τύπος: Διαμέρισματα
Υπνοδωμάτια: 3
Μπάνια-WC: 2
Πωλείται στον Κορυδαλλό στην οδό Πελοπίδα 2 και Μεγ. Αλεξάνδρου 12 (Πλατεία Μέμου) (700μ) από Μετρό Κορυδαλλού οροφοδιαμέρισμα άριστης αρχιτεκτονικής – κατασκευής στον 5ο όροφο με εμβαδόν 105 τ.μ. σε υπό ανέγερση πολυτελούς 7όροφης οικοδομής ενεργειακής κλάσης Α+, με κοινόχρηστα φωτοβολταϊκά συστήματος Net Metering.
Το διαμέρισμα αποτελείται από σαλόνι – τραπεζαρία και σε συνέχεια αυτού ενιαίο εξώστη στην πρόσοψη, κουζίνα, τρία υπνοδωμάτια με ενιαίο εξώστη στον ακάλυπτο, λουτρό και WC.
Διαθέτει ατομικό λέβητα Φυσικού Αερίου, κλιματιστικά σε όλους τους χώρους, κουφώματα αλουμινίου θερμοδιακοπής με διπλά ενεργειακά κρύσταλλα, πόρτα ασφαλείας, ηλιακός, σύστημα συναγερμού, υποδομή για ηλεκτρική τέντα, κοντά σε αγορά και συγκοινωνίες. Το διαμέρισμα διαθέτει θέση στάθμευσης υπογείου και αποθήκη στο υπόγειο.
Πλησίον Μετρό Κορυδαλλού (700μ)
Ατομική Θέρμανση Φυσικού Αερίου
Εγκατεστημένος συναγερμός
Ηλιακός θερμοσίφωνας
Minimal σχεδιασμός σε απλές - λιτές γραμμές
Μοντέρνα κουζίνα υψηλής αισθητικής & υλικών επιλογής σας
Περιμετρική θερμομόνωση - υγρομόνωση κτιρίου
Επώνυμα ενεργειακά κουφώματα αλουμινίου
Μεγάλα ανοίγματα για φωτισμό και αερισμό
Φωτισμός led στους κοινόχρηστους χώρους
Αυτόματη φωταγώγηση κοινόχρηστων χώρων
Πιστοποιημένα υλικά Ευρωπαϊκής προέλευσης
Φύτευση σε κοινόχρηστους χώρους
Κοινόχρηστα φωτοβολταϊκά συστήματος Net Metering
Κλιματιστικά σε όλους τους χώρους
Πλατεία σε 200μ
Δίκτυο Internet
Σύγχρονο λουτρό
Πόρτα ασφαλείας
Θέση Parking
Αποθήκη
Θερμομόνωση
Κεντρική κεραία
Υπνοδωμάτια
Μπάνια-WC
Τετραγωνικά
Έτος Κατασκευής
Τιμή



